Pre-market alerts

View properties before they hit the portals. See more

Property alerts

We’ll instantly email you when new properties are listed that meet your criteria. See more

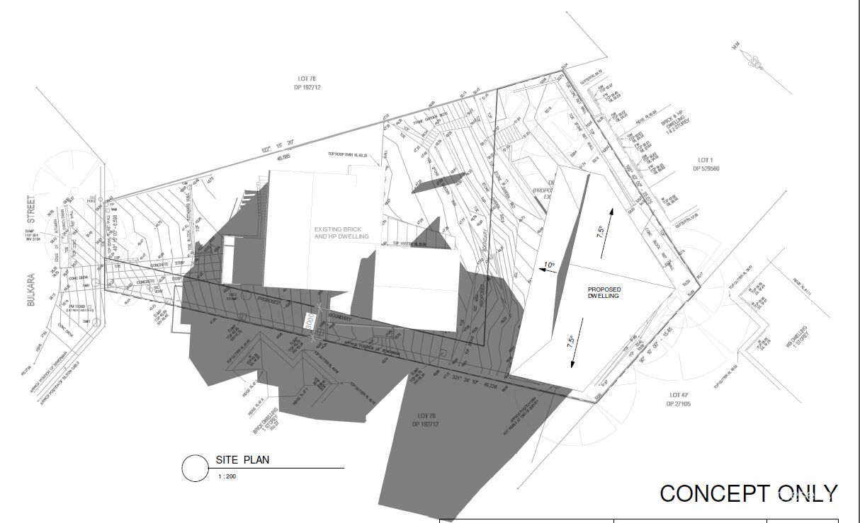
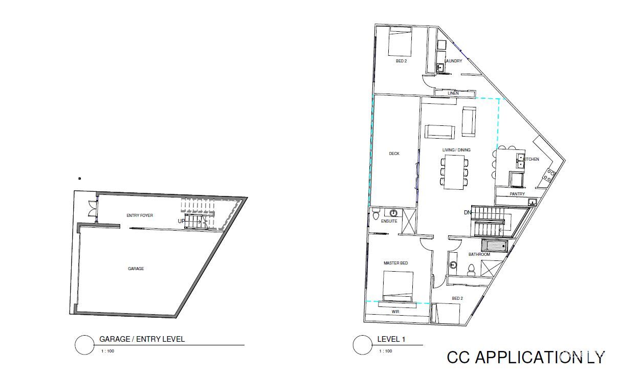
Build Your Dream New Home in Popular Adamstown Heights - DA Approved

The DA approved two lot Torrens title subdivision at 25 Bulkara Street has created an exciting prospect for a dream new build in this sought-after family-friendly suburb. Situated at the rear of the existing dwelling, the 565sqm block (450sqm excluding driveway) slopes up from the street, suiting a split-level design that takes full advantage of the north-westerly aspect and pleasant district views. The immensely popular neighbourhood easily accesses Westfield Kotara, several popular schools and the Fernleigh Track as well as the beach and city within minutes.

Disclaimer:

All information provided by Presence Real Estate in the promotion of a property for either sale or lease has been gathered from various third-party sources that we believe to be reliable. However, Presence Real Estate cannot guarantee its accuracy, and we accept no responsibility and disclaim all liability in respect of any errors, omissions, inaccuracies or misstatements in the information provided. Prospective purchasers and renters are advised to carry out their own investigations and rely on their own inquiries. All images, measurements, diagrams, renderings and data are indicative and for illustrative purposes only and are subject to change. The information provided by Presence Real Estate is general in nature and does not take into account the individual circumstances of the person or persons objective financial situation or needs.

Share this page

Get instant price guide

Email Agent about 25a Bulkara Street, Adamstown Heights NSW 2289
What's your enquiry about?
Yes I’d like to receive details on similar properties before they hit the market

Book inspection / Enquire

Email Agent about 25a Bulkara Street, Adamstown Heights NSW 2289
What's your enquiry about?
Yes I’d like to receive details on similar properties before they hit the market

Make an offer

arrow_up [#ffffff]Created with Sketch.
Property photo
Property photo
Property photo
arrow_down [#ffffff]Created with Sketch.
arrow_up [#ffffff]Created with Sketch.
Property photo
Property photo
Property photo
Property photo
Property photo
Upcoming auctions - Presence Real Estate
Property photo
arrow_down [#ffffff]Created with Sketch.